Terreno - Campos de Roca II

direccion Ruta 2 Km 60, City Bell

volver Volver al listado
left
right
left
right

Venta

USD 20.000

Codigo Código de propiedad: CLA1166095
  • Tipo de propiedad Lotes / Terrenos
  • Superficie total Sup. total 2250m2

Acerca de la propiedad

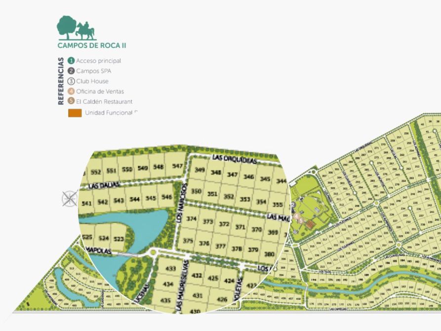
EXCELENTE LOTE DE TERRENO EN BARRIO CERRADO CAMPOS DE ROCA II, LA MEJOR VISTA A LA LAGUNA. CON 2.250 METROS CUADRADOS, LOTE 375, INMEJORABLE UBICACIÓN, OPORTUNIDAD, ESCUCHA PROPUESTAS!
VENTA DIRECTA - CONSULTE - ACEPTA PERMUTA ( a satisfacción propietarios )

A sólo 40 minutos de Buenos Aires y 30 minutos de La Plata, descubrí Campos de Roca II, un barrio que cuenta con espacios exclusivos dedicados exclusivamente para el descanso y el entretenimiento, inmerso en 230 hectáreas dominadas por árboles y aves autóctonas. Nuestras 230 hectáreas que mantienen un equilibrio entre casuarinas, sauces, álamos y eucaliptos de más de 100 años, animales de distintas especies que coexisten naturalmente con quienes disfrutan siendo parte del barrio.

Viví rodeado por la naturaleza, sus aromas y sonidos. Calidad de vida, para vos y tu familia. La calidez de espacios como nuestro Club House te brindarán comodidades tales como: el restaurant “El Calden”, un centro de Spa, piscina in-out y salas de recreación adaptadas para todas las edades y un centro deportivo al aire libre.

Disfruta del deporte al aire libre en su máxima expresión. Ubicada en el Parque Central, donde se sitúa el Club House, 2 Canchas de fútbol 11, 2 canchas de tenis construidas de polvo de ladrillos y 2 proyectadas, 2 canchas de paddle, playón multideportes para la práctica de Básquet, cancha de Voley sobre césped, pileta exterior y un área de juegos infantiles.
SPA
Baño turco | Sauna seco | Ducha escocesa | Sala de relax | Sala de masajes
Vení a relajarte y desconectáte.
RESTAURANTE \"EL CALDÉN\"
Disfruta de una cocina auténtica, pensada exclusivamente para vos y tu familia.
CLUB HOUSE
Sala de reuniones; de juegos | Salón de lectura | Espacio de danza | Gimnasio
Centro de reunión y ocio por excelencia de Campos de Roca II
PISCINAS
El barrio cuenta con dos piscinas. Una al aire libre y la exclusiva piscina IN-OUT.
LAGUNA
Campos de Roca II posee dos lagunas, una de 45.000 m2 y otra de 15.000 m2 que ofrecen la posibilidad de practicar actividades náuticas sin motor, como son remo y kayak.
ARROYO
Es un curso de agua natural que atraviesa el barrio en su mayor extensión, posee tres puentes vehiculares que conectan ambos sectores de la urbanización. A sus márgenes se ha diseñado una senda aeróbica y un paseo verde para la realización.

*las medidas expresadas son solo para el efecto orientativo, las reales surgen de los respectivos planos, títulos y/o planchetas catastrales. Las imágenes publicadas de esta propiedad no necesariamente son vinculantes ni tampoco contractuales.
**La venta de este inmueble está sujeta a la tramitación del Código de Transferencia de Inmuebles (COTI), de conformidad con la normativa vigente (Res. AFIP 2371/08, 2439/08 y ccs.) por parte del propietario.

Comodidades

  • Mascotas Acepta mascotas
Ver más

Ubicación

Las medidas enunciadas son meramente orientativas, las medidas exactas serán las que se expresen en el respectivo título de propiedad de cada inmueble. Las fotos, imágenes y videos son meramente ilustrativos y no contractuales. Los precios enunciados son meramente orientativos y no contractuales.

Servicio brindado por

buscadorprop

Todos los derechos registrados:

grupotodo
whatsapp Whatsapp email Contactar telefono Llamar
Chatea con nosotros whatsapp